11 августа, 11:26, 2025 г.
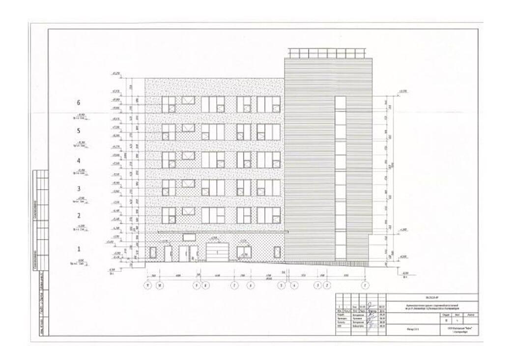
В Екатеринбурге в границах улиц Энгельса и Розы Люксембург построят бизнес-центр рядом с историческим зданием. Строительство не навредит деревянному дому-памятнику купца Осокина, возведенному в конце XIX века, сказано в акте, размещенном на сайте управления госохраны Свердловской области.

Фото: управление госохраны Свердловской области
«Разработанная проектная документация, выводы научных исследований не содержат решений, которые могут привести к повреждению или разрушению исторического здания», — сказано в документе.

Фото: Tripadvizor.ru
У бизнес-центра будет шесть этажей и подземная парковка. Чтобы не повредить историческое здание, застройщик должен укрепить котлован специальным ограждением и возвести забор перед объектом культурного наследия. В проекте рассматривается демонтаж одной из стен дома, так как она не является объектом ОКН.
«В случае демонтажа существующей подпорной стены на момент строительства по окончанию работ стена будет восстановлена в виде сетчатого ограждения. Существующая стена не является объектом культурного наследия», — уточнили в акте.
Участком с 2011 года владеет ООО «Уралинвестцентр» — компания владельца корпорации «Маяк» Владимира Конькова, уточняет E1. В марте 2021 года управление госохраны уже разрешало строительство бизнес-центра, но девелопер не начал стройку. Год спустя землю вместе с проектом выставили на продажу за 80 миллионов рублей, однако покупать ее никто не стал.