27 февраля, 19:05, 2023 г.
В усадьбе Антипина на улице Октябрьской Революции, 52 в Екатеринбурге появится апарт-отель. Информация об этом содержится в документах к работам по сохранению памятника. Само здание и его флигель попали в список объектов культурного наследия, которые отреставрируют в честь 300-летия Екатеринбурга. Памятник находится на территории застраиваемого квартала «Екатеринбург-Сити».

Фото: Музей истории Екатеринбурга
О том, что особняк попал в реестр зданий, которые в 2023 году ждет ремонт, рассказал мэр Екатеринбурга Алексей Орлов. Усадьбу и флигель ждет комплексная реставрация. «В текущем году в сохранение объектов культурного наследия запланировано вложить средств в разы больше, чем в предыдущие пару лет», — цитирует главу Екатеринбурга горадминистрация.
Проектная документация для ремонта уже разработана. Согласно информации с портала госзакупок, на эти цели администрация Екатеринбурга потратила 3,79 миллиона рублей. Еще 7,18 миллиона рублей из городского бюджета пойдет на ремонтные работы.
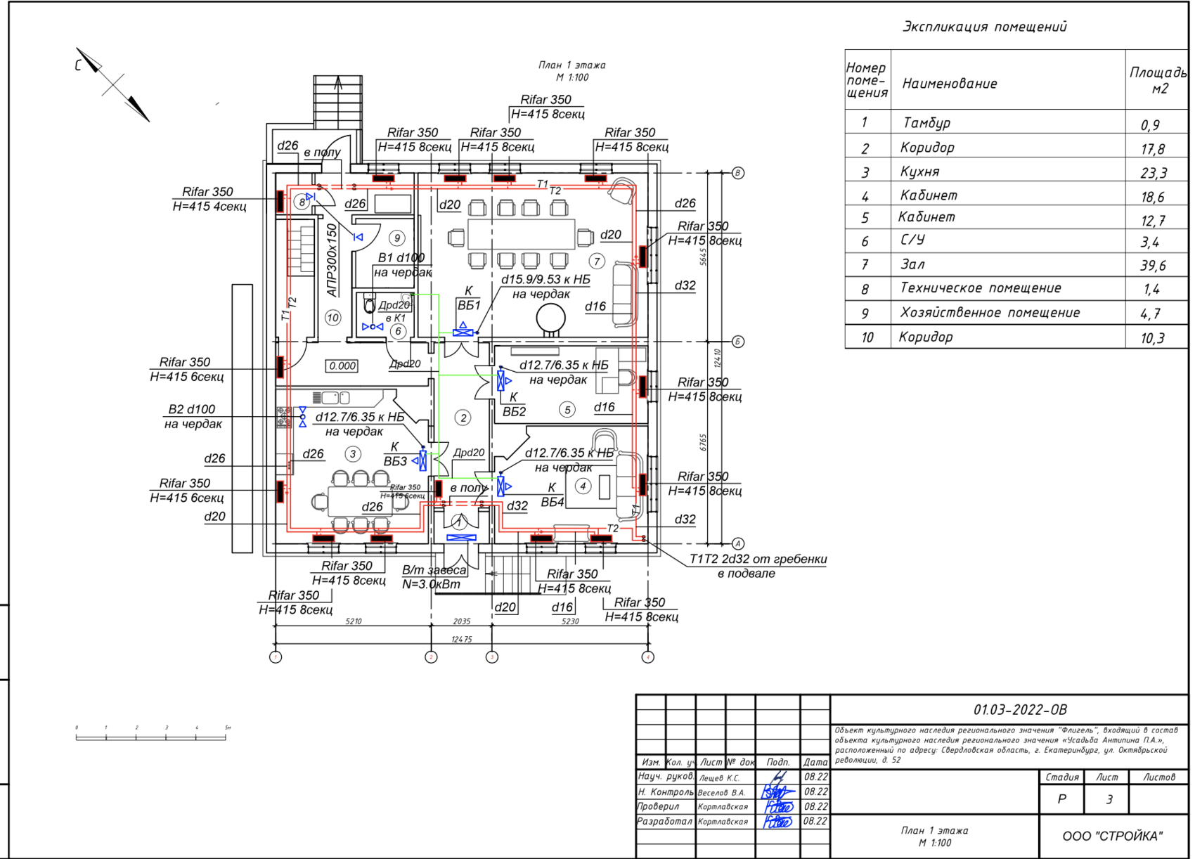
В главном доме особняка откроется апарт-отель, указано в акте государственной историко-культурной экспертизы к проектной документации. В документах к государственной закупке раскрыто больше подробностей проекта: «Предусмотреть три номера в составе (гостиная, спальня, сан/узел), холл, сан/узлы общего пользования (1, 2 этаж), технические помещения».

План первого этажа. Фото: проектная документация на портале госзакупок

План первого этажа. Фото: проектная документация на портале госзакупок
Во флигеле, который также признан памятником, разместятся административные помещения. «Предусмотреть два кабинета (кабинет руководителя и кабинет помощника), зал для переговоров, комнату для приготовления и приема пищи, санузел, технические помещения», — сказано в документах.

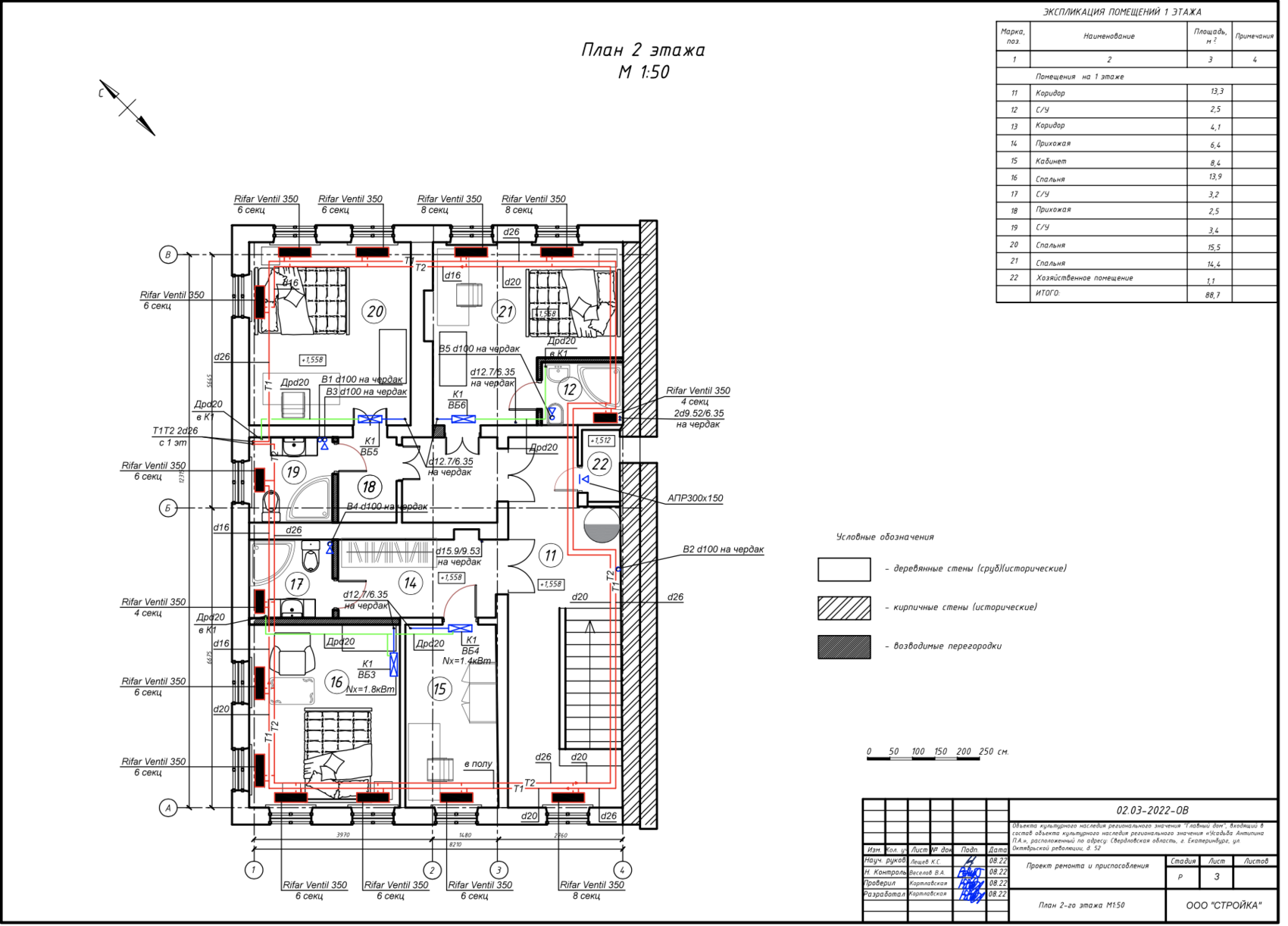
План флигеля. Фото: проектная документация на портале госзакупок
Также на территории апарт-отеля будет беседка с зоной барбекю (место для приготовления пищи), обеденной зоной, зоной отдыха и санузлом.
Особняк Антипина компания «УГМК-Застройщик» включила в планировку будущего района Екатеринбург-Сити, строительство которого постепенно начинается. При этом, как рассказал It’s My City генеральный директор «УГМК-Застройщик» Евгений Мордовин, будущая гостиница не является проектом застройщика.
Усадьбу в начале 1900-х годов построил ювелир П. А. Антипин. В начале 1910-х годов он установил одноэтажный деревянный флигель. 1 июня 1925 года усадьба была передана в домовладение жилищно-арендного кооперативного товарищества (ЖАКТа) № 17 со всеми имеющимися в усадьбе жилыми и нежилыми строениями. В домах усадьбы в это время были размещены коммунальные квартиры. В конце 1980-х годов жильцов отселили, а усадьбу по решению горисполкома в 1989 году передали на баланс ЗАО «Уником» ВФК. Сейчас усадьба Антипина находится в муниципальной собственности.
«Екатеринбург-Сити» — проект компании «УГМК-Застройщик» в границах улиц Челюскинцев — Бориса Ельцина — Боевых Дружин — Октябрьской Революции. Первые эскизы появились еще в 2017 году, однако в 2022 была утверждена окончательная концепция. В квартале разместятся офисные небоскребы, две жилые башни, рестораны, пешеходные зоны с площадками для отдыха. Рабочие уже возводят здесь первое здание — это будет гастромолл.
В ходе строительных работ в пределах будущего квартала пострадала часть территории усадьбы Казанцева, признанной памятником архитектуры. В котлован будущего гастромолла съехал забор и осыпалась земля из сада, который относится к старинной постройке. Позже представители «УГМК-Застройщика» пообещали возместить нанесенный ими ущерб.
Вместе с тем для строительства делового квартала компания «УГМК-Застройщик» предложила лишить статуса объекта культурного наследия дом, где жил уральский краевед Андрей Афиногенов. Здание было утрачено еще в 1991 году, а сейчас попадает на территорию застройки «Сити».